City View Lofts to Turn Aging Euclid Avenue Office Into Affordable Housing
The latest plan to Downtown Cleveland would convert a 1950s-era office property into 33 apartments, continuing the city's post-pandemic shift toward housing.
by Ken Prendergast, NEOTrans | Oct. 8, 2025 | 5:00 AM

Photo Courtsey of Vocon
This article was published through an exclusive content-sharing agreement with neo-trans.blog.
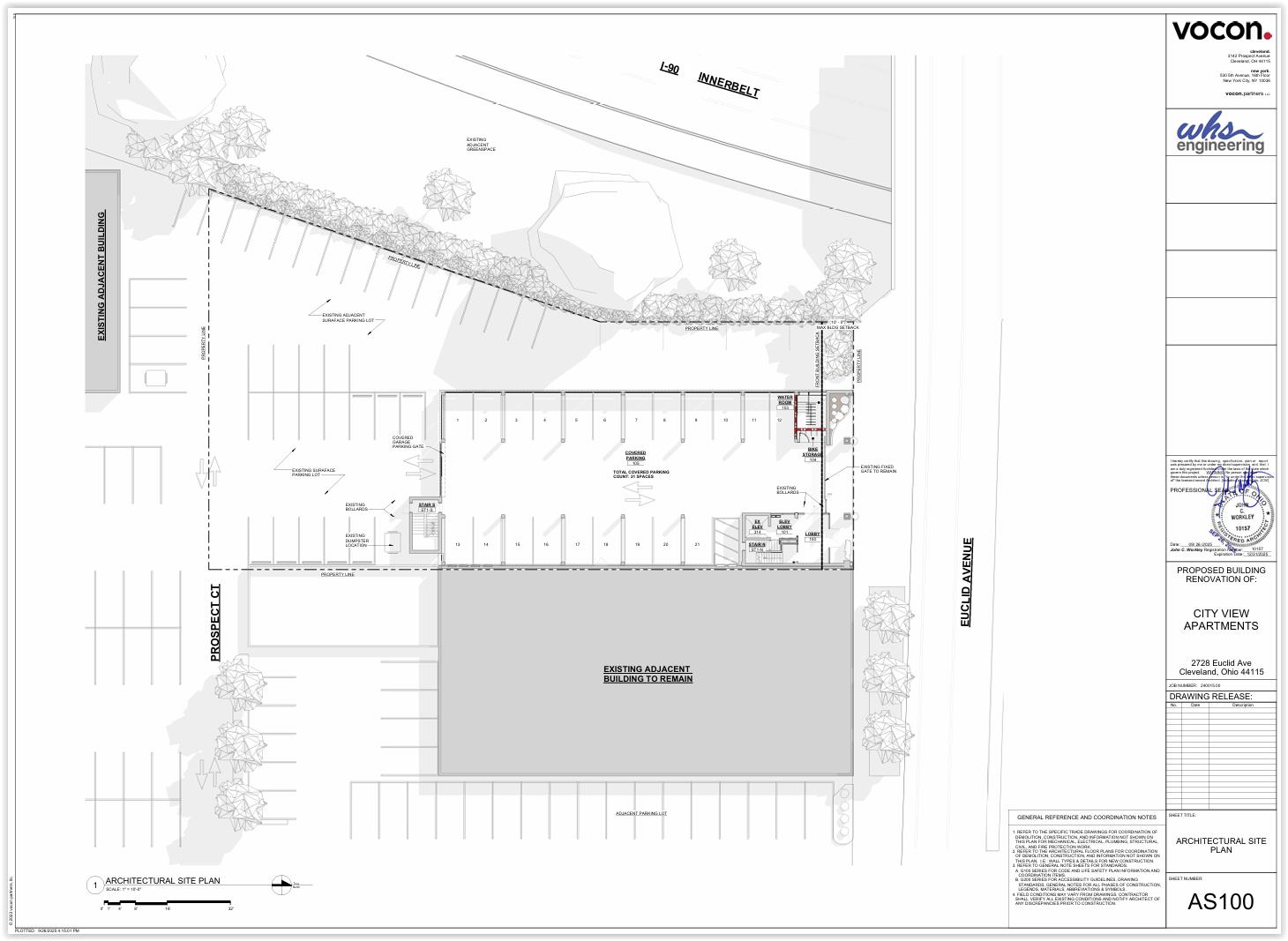
Plans were submitted to the city yesterday for the latest conversion of an aging, post-war office building near the intersection of Euclid Avenue and East 30th Street. But the proposed conversion at 2728 Euclid Ave. may come at a bargain price.
Several vacant, obsolete office buildings nearby in the Euclid-East 30th area were recently converted. These apartments — Innerbelt Lofts, University Studios, The Midtown Apartments — have more affordable prices than those in the central business district.
Yet they offer easy easy car, bike and transit access to Downtown Cleveland and University Circle — the first- and fourth-largest employment centers in Ohio. Cleveland State University also been a draw for tenants to these buildings.
According to plans submitted to the city’s Building Department, a mere $1.8 million will be invested to create 33 apartments on floors two through five with indoor, ground-floor parking for the 30,505-square-foot building. There are also about 230 surface parking spaces on the three-parcel property.

“City View Apartments is a five-story, 30,000-square-foot conversion of a historic office building into apartments,” wrote Michael Augoustidis, a project director at Cleveland-based architectural firm Vocon Partners, in submitting plans to the city.
“The building use is currently B (business) and is changing to R-2 (multiple residential units),” he continued. “The construction is 1A (high-level fire-resistance) on the ground floor and VA (fire rating) on floors 2-5 with a one-hour (fire) separation between floors. Residential units are all demised with rated assemblies. Staircases and elevators are existing to remain.”
Three adjoining properties in this block are owned by Tri Building Associates which in turn is owned by longtime real estate investor and developer J. Gordon Premier.
This building is the smallest of two so-called Innerbelt Buildings with the larger, six-story building next door at 2800 Euclid. They were built in 1956 and renovated in the early 2000s with modern office and educational spaces for business and culinary incubators.

The larger Innerbelt Building will remain as offices. And the to-be-converted office building isn’t empty unlike others nearby that were recently converted. Several tenants in the building are relocating.
One of them is Life Solutions South which provides mental health, behavioral health and substance use services to individuals, families and communities.
The treatment center submitted plans this week to the city to renovate a century-old, two-story commercial building at 3865 Carnegie Ave. Life Solutions South LLC acquired the Carnegie property in December of 2023 for $350,000 according to Cuyahoga County property records.
J&M Real Estate Advisors invested about $5 million in the properties this century. J&M Real Estate Advisors is owned by Premier.

Much of Premier’s investment and development attention has been focused on Midtown. He recently sold land about 15 blocks farther east on Euclid for a new residential development by Signet Real Estate Group.
That development is a three-building, mixed-use development at 4209 Euclid and temporarily carrying the working title of Midtown Site. Its plan was approved by the Planning Commission this summer. That site is currently used as a parking lot.
Additional properties in the Euclid-East 30th area could soon be facing redevelopment plans of their own. That includes the vacated, four-story Cuyahoga County Board of Elections building, 2925 Euclid.
For more updates about Cleveland, sign up for our Cleveland Magazine Daily newsletter, delivered to your inbox six times a week.
Cleveland Magazine is also available in print, publishing 12 times a year with immersive features, helpful guides and beautiful photography and design.

Ken Prendergast, NEOTrans
Ken Prendergast is a local professional journalist who loves and cares about Cleveland, its history and its development. He has worked as a journalist for more than three decades for publications such as NEOtrans, Sun Newspapers, Ohio Passenger Rail News, Passenger Transport, and others. He also provided consulting services to transportation agencies, real estate firms, port authorities and nonprofit organizations. He runs NEOtrans Blog covers the Greater Cleveland region’s economic, development, real estate, construction and transportation news since 2011. His content is published on Cleveland Magazine as part of an exclusive sharing agreement.
Trending
-
1
-
2
-
3
-
4
-
5