Amazon Eyes Major Hub Near Cleveland Hopkins International Airport
Backed by a major tenant believed to be Amazon, the 650,000-square-foot development is moving swiftly through city planning.
by Ken Prendergast, NEOTrans | Apr. 8, 2026 | 1:30 PM
Courtesy of LBI
This article was published through an exclusive content-sharing agreement with neo-trans.blog.
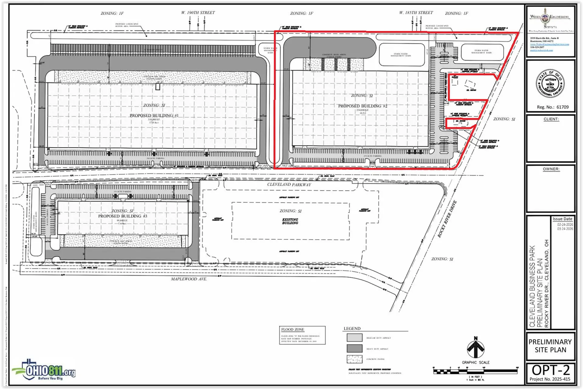
A proposed light-industrial/warehouse development in Cleveland, off Rocky River Drive near Hopkins International Airport, has advanced quickly toward final approval by the city. Part of the reason why is that a major tenant will anchor the 650,000-square-foot, three-building project and wants to move forward.
The prospective tenant, according to two sources who spoke to NEOtrans on the condition of anonymity, is the e-commerce giant Amazon which plans to lease a 234,000-square-foot structure. That should not come as a surprise to anyone who has been following real estate trends in recent years, both locally and nationally.
On April 2, Cleveland Planning Commission approved schematic plans for the development by Scannell Properties of Indianapolis which has an estimated price tag of $75 million. It also recommended that final design approval rest with the commission’s staff following an as-yet unscheduled community meeting to address neighborhood concerns about traffic and noise.
Locally, Amazon has been looking for a long time for a large facility, be it existing or new, near Hopkins Airport and Interstates 71 and 480 for a Regional Air Gateway Sortation Center. The lack of available large sites by the airport has complicated that search.
In fact, one site Amazon looked at was the former Ford auto plant on Snow Road that the Haslam Sports Group acquired last year from a consortium that included Scannell for its new Huntington Bank Field/Cleveland Browns stadium and supportive development.
Another location it looked at was the I-X Center which was to include a data center as well. But that fell through as did a successor plan for manufacturing electric vehicle batteries at the I-X Center.
Scannell is the developer for many Amazon distribution centers around the country. It has joined with Cleveland Business Park’s developer Chelm Properties of Solon to expand the business park.
Also, Scannell works with architect Lincoln Brown Illustration of Vermont to design multiple Amazon distribution centers. Scannell and Lincoln Brown are partnering on the Cleveland Business Park expansion with local firm Weber Engineering Services LLC of Rootstown.
Nationally, the world’s largest internet retailer has been working in recent years to establish a hierarchical network of air cargo distribution centers near commercial airports to serve as gateways to cities and regions.
At the top of Amazon Air’s food chain is an 800,000-square-foot primary hub built in 2021 at Cincinnati/Northern Kentucky International Airport. So building an air cargo facility anywhere near that large or as important so close to Greater Cincinnati isn’t going to happen.
“Amazon Air relies less on the hub-and-spoke structure than major air freight operators since the purpose of its services is to support purchases made on Amazon’s digital platform,” noted The Geography of Transport Systems. “As of mid-2022, 52 airports were serviced, and Amazon operated directly six air hubs. A significant factor in airport choice for a hub is proximity to distribution facilities.”
Based on the size of and employment at other Amazon air cargo centers, the size of Cleveland’s gateway suggests it could see up to 300 new employees especially at peak shipping times of the year.
The Amazon facility would anchor an expansion of the Cleveland Business Park along Cleveland Parkway, west of Rocky River Drive in the city’s Riverside neighborhood. Amazon’s 234,000-square-foot distribution center is build-to-suit, meaning its size and design is tailored to the needs of a tenant.
“We do have a specific tenant that they’re working with,” said Matthew Weber, owner of Weber Engineering Services, who addressed the Planning Commission on April 2. “This is an intended tenant that wants this specific layout and use.”
However, he declined to name the tenant. An e-mail sent by NEOtrans to Scannell’s Director of Development Jack Kelly seeking confirmation was not answered prior to publication of this article. NEOtrans broke the story of the proposed development in February.
At a Planning Commission meeting held a month ago where a conceptual plan for the proposed development was introduced, Kelly confirmed Scannell had a specific tenant in mind for the business park expansion.
“We are in deep conversations with a build-to-suit user, meaning that there is a tenant we would develop a project specifically to suit their exact needs,” Kelly said on March 6. “We’re going to further refine this and define this as we progress conversation with the tenant.”
Sidewalks and bike racks were the latest additions to the building plans. Refinements are coming, such as adding a continuous, dense landscaping buffer between the north side of the Cleveland Business Park expansion and the Homeway Road neighborhood in the vicinity of West 185th and West 190th streets.
“It’s useful to explain to the community that this (development) is allowable per the zoning so this is not necessarily (a question of) whether or not it’s going to be built here; but we can be as sensitive as possible and get some feedback,” said Ward 15 Councilman Charles Slife, who also is a member of Planning Commission.
“I’ve gotten some questions about traffic and noise and stuff like that,” Slife added. “But I think there’s some design options and landscaping options that could help mitigate some of those concerns. That would be the purpose of the community meeting and whatever feedback comes from that could be worked through with staff and final approval can be given.”
For more updates about Cleveland, sign up for our Cleveland Magazine Daily newsletter, delivered to your inbox six times a week.
Cleveland Magazine is also available in print, featuring immersive stories, helpful guides and beautiful photography and design.
Ken Prendergast, NEOTrans
Ken Prendergast is a local professional journalist who loves and cares about Cleveland, its history and its development. He has worked as a journalist for more than three decades for publications such as NEOtrans, Sun Newspapers, Ohio Passenger Rail News, Passenger Transport, and others. He also provided consulting services to transportation agencies, real estate firms, port authorities and nonprofit organizations. He runs NEOtrans Blog covers the Greater Cleveland region’s economic, development, real estate, construction and transportation news since 2011. His content is published on Cleveland Magazine as part of an exclusive sharing agreement.
Trending
-
1
-
2
-
3
-
4
-
5
